
地址:江西省九江市濂溪区滨江东路与洪垅路交汇处
电话:0792-8352828
0792-8352066
传真:0792-8352666
邮件:jjyixin@jjyixin.cn
网址:www.jx-yixin.com
粉末涂料主要成分
粉末涂料主要成分是塑料,是以高分子有机化合物为基础,分类如下:
①热塑型粉末涂料:热塑型粉末涂料,即与热塑型塑料相似,加热后可反复溶化10mn 成形,可多次加热,多次成形。热塑型粉107l~0S 末涂料形成的补涂带(见图3-99),具有良好的弹性和柔韧性。
要成功地将热塑型粉末涂料补涂到罐身焊缝区域,形成一层无微孔的最薄的涂料层(成本低),关键在于选用适当的粉末颗粒直径,经验表明,最大的颗粒直径为100μm的粉末涂料可以涂成最薄为50pm厚的无微孔涂层。当这种粉末涂料在加热E30= 熔化时,粉末涂料便融合在一起,涂层的厚度和密度与粉末颗粒的直径分布存在着一定关系,并且直接影响到粉末补涂工艺的成本。平均颗粒直径为50um 的粉末涂料,可以形成最小厚度为25um的最薄无微孔涂层。但这种结果首先必须采用可带较高静电荷的粉末补涂涂料,才能在焊缝区域形成最佳的高密度涂层。热塑性涂料具有良好的塑性,它有良好的机械特性,如用较厚的粉末涂料涂层,即使焊缝上没有无氧气体保护工序,在后续工序中,如翻边,缩颈,滚筋工序中,涂层也不会被破坏。但为了节约成本,粉末涂层在可接受的条件下,应涂得最薄。但薄的涂层,在焊缝处最好不含任何氧化物,有利于后面工序。
粉末涂料的烘烤固化时间应在8~10s,以便使粉末涂料层充分融化,形成致密的无微孔的涂层。
热固型粉末涂料

图3-100热固型粉末补涂带
②热固型粉末涂料:热固型粉末 E08~S涂料在加热后,不能反复成形,一般一次熔化后成型,则不能再次熔化变形。热固型粉末涂料形成的补涂带,柔韧性不如热塑性涂料。这种材料适合于加工成平均颗粒直径为30~40μm的粉末涂料,使粉末涂料在补涂过程中具有必要的流动性。由于这种粉末为热固型涂料,所以在预聚物熔化后 E1CT的固化阶段,即发生加聚反应,从而形成高分子化合物。由于热固型涂料可以达到较薄的补涂层(见图3-100), 从而使应用粉末补涂的成本下降至接近液体涂料的价格。
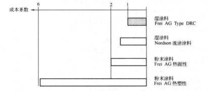
不同涂料的成本价格对比如图3-101所示,详见表3-5。

图3-101 液体涂料不同补涂方法与粉末涂料的价格对比

由上可知,热塑型粉末涂料的价格最贵
③热塑型和热固型混合型粉末涂料:为了提高粉末涂料的综合特性,以适应不同内容物,不同条件下的保护效果及柔韧性,制造厂商经常将热塑型和热固型粉末涂料,按一定的比例混合在一起,配制出不同型号的粉末涂料,以改善其机械性能和达到良好应用性和补涂效果。所以在应用粉末补涂设备时,在更换不同的粉末涂料时,少量的混合不会有大的影响。